Opublikowano . Ostrów Mazowiecka | Aktualności | Wiadomości z miasta


Ratusz ogłosił przetarg na modernizację boiska przy SP nr 1

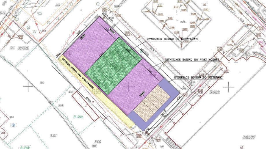
Urząd Miasta Ostrów Mazowiecka ogłosił przetarg na modernizację boiska wielofunkcyjnego przy Szkole Podstawowej nr 1 przy ul. Partyzantów. Chodzi o wymianę zużytej nawierzchni i odświeżenie obiektu sportowego. W trakcie postępowania wykonawca zapytał o możliwość innej technologii - ratusz wyraził zgodę.

Plan modernizacji boiska przy Szkole Podstawowej nr 1, źródło: UM Ostrów Mazowiecka.

Zakres prac obejmuje demontaż starych urządzeń, usunięcie starej nawierzchni, przygotowanie podłoża i ułożenie nowej nawierzchni poliuretanowej, wytyczenie linii, prace przy ogrodzeniu, montaż urządzeń oraz odwodnienie. Przewidziano też okablowanie pod oświetlenie boiska. Zamówienie ma dwie części: modernizację boiska oraz montaż instalacji oświetlenia. Oferty można składać do 24 września br.

W odpowiedzi na pytanie wykonawcy miasto dopuściło nawierzchnię poliuretanową wykonywaną metodą natryskową (tzw. spray) jako rozwiązanie równoważne, po spełnieniu wymaganych parametrów i przedstawieniu odpowiednich dokumentów. Oferty będą oceniane głównie pod kątem ceny oraz długości gwarancji. Część dotycząca modernizacji boiska ma dofinansowanie z budżetu Województwa Mazowieckiego z programu "Mazowsze dla sportu". Zakończenie prac zaplanowano do 30 listopada br.

Dopasuj dla mnie

Zaznacz tematy, które Cię interesują. Zapamiętamy wybór tylko na tym urządzeniu.

Wybraliśmy dla Ciebie

Wiadomości z miasta Twój dom świeci się na czerwono na mapie miasta? Możesz spodziewać się kontroli
Twój dom świeci się na czerwono na mapie miasta? Możesz spodziewać się kontroli
07.12.2025 · 13707 osób przeczytało ten artykuł
Wiadomości z miasta Co czeka mieszkańców Ostrowi Mazowieckiej w przyszłym roku? Ogromne inwestycje i rosnący …
Co czeka mieszkańców Ostrowi Mazowieckiej w przyszłym roku? Ogromne inwestycje i rosnący …
29.11.2025 · 9977 osób przeczytało ten artykuł
Wiadomości z miasta Chaos z parkowaniem przy szpitalu. Deweloper chce zbudować płatny parking
Chaos z parkowaniem przy szpitalu. Deweloper chce zbudować płatny parking
06.12.2025 · 6617 osób przeczytało ten artykuł
Wiadomości z miasta Burmistrz Betlejewski uspokaja w sprawie budowy nowego osiedla przy ul. Olszynowej
Burmistrz Betlejewski uspokaja w sprawie budowy nowego osiedla przy ul. Olszynowej
02.12.2025 · 5357 osób przeczytało ten artykuł
Wiadomości z miasta Miejska choinka w Ostrowi Mazowieckiej oficjalnie rozbłysła (zdjęcia, wideo)
Miejska choinka w Ostrowi Mazowieckiej oficjalnie rozbłysła (zdjęcia, wideo)
06.12.2025 · 3430 osób przeczytało ten artykuł
Wiadomości z miasta Miasto chce wydzielić teren pod parking przy szpitalu. Jest projekt zmian w planie miejsc…
Miasto chce wydzielić teren pod parking przy szpitalu. Jest projekt zmian w planie miejsc…
10.12.2025 · 3395 osób przeczytało ten artykuł
Wiadomości z miasta Jarosław Polak dalej pokieruje Bursą Szkolną w Ostrowi Mazowieckiej
Jarosław Polak dalej pokieruje Bursą Szkolną w Ostrowi Mazowieckiej
03.12.2025 · 3357 osób przeczytało ten artykuł
Wiadomości z miasta Kosmiczna różnica w cenach za remont kaplicy Nowców. Miasto unieważniło przetarg
Kosmiczna różnica w cenach za remont kaplicy Nowców. Miasto unieważniło przetarg
08.12.2025 · 3106 osób przeczytało ten artykuł
Wiadomości z miasta Ponad 200 choinek trafiło do mieszkańców Ostrowi! Ekologiczna akcja zakończona sukcesem! …
Ponad 200 choinek trafiło do mieszkańców Ostrowi! Ekologiczna akcja zakończona sukcesem! …
09.12.2025 · 2892 osób przeczytało ten artykuł
Wiadomości z miasta Rozdawaliśmy świąteczne drzewka. Gdzie staną choinki i jakie ozdoby na nich zawisną? (wid…
Rozdawaliśmy świąteczne drzewka. Gdzie staną choinki i jakie ozdoby na nich zawisną? (wid…
10.12.2025 · 2592 osób przeczytało ten artykuł
Wiadomości z miasta Trwa akcja "Świąteczne drzewko za surowce". Choinki wciąż czekają na mieszkańców! (zdjęci…
Trwa akcja "Świąteczne drzewko za surowce". Choinki wciąż czekają na mieszkańców! (zdjęci…
09.12.2025 · 2583 osób przeczytało ten artykuł
Wiadomości z miasta Świąteczne drzewko za surowce - zapraszamy na wielką akcję ekologiczną!
Świąteczne drzewko za surowce - zapraszamy na wielką akcję ekologiczną!
01.12.2025 · 2540 osób przeczytało ten artykuł
Wiadomości z miasta Motomikołaje w Ostrowi Mazowieckiej. Świąteczna akcja KM STAJNIA
Motomikołaje w Ostrowi Mazowieckiej. Świąteczna akcja KM STAJNIA
09.12.2025 · 2226 osób przeczytało ten artykuł
Wiadomości z miasta Zimowy sezon na lodowisku otwarty! Pierwszy ślizg już za nami, Mikołaj rozdawał upominki …
Zimowy sezon na lodowisku otwarty! Pierwszy ślizg już za nami, Mikołaj rozdawał upominki …
05.12.2025 · 2194 osób przeczytało ten artykuł
Wiadomości z miasta Fotowoltaika na dachu hali. Burmistrz wyjaśnia, jaki podatek trzeba zapłacić
Fotowoltaika na dachu hali. Burmistrz wyjaśnia, jaki podatek trzeba zapłacić
09.12.2025 · 1896 osób przeczytało ten artykuł
Wiadomości z miasta Koniec utrudnień na skrzyżowaniu Broniewskiego i Podstoczysko. Nowa nawierzchnia już goto…
Koniec utrudnień na skrzyżowaniu Broniewskiego i Podstoczysko. Nowa nawierzchnia już goto…
04.12.2025 · 1896 osób przeczytało ten artykuł
Wiadomości z miasta Już jutro uroczyste odpalenie światełek na miejskiej choince!
Już jutro uroczyste odpalenie światełek na miejskiej choince!
05.12.2025 · 1778 osób przeczytało ten artykuł
Wiadomości z miasta Miały być woliery dla kotów. Miasto chce wykreślić je z budżetu 
Miały być woliery dla kotów. Miasto chce wykreślić je z budżetu 
10.12.2025 · 1729 osób przeczytało ten artykuł
Wiadomości z miasta Już jutro świąteczne drzewko za surowce - zapraszamy na wielką akcję ekologiczną!
Już jutro świąteczne drzewko za surowce - zapraszamy na wielką akcję ekologiczną!
08.12.2025 · 1647 osób przeczytało ten artykuł
Wiadomości z miasta Ulicą Brokowską spacerował... lis
Ulicą Brokowską spacerował... lis
28.11.2025 · 1521 osób przeczytało ten artykuł
Wiadomości z miasta Lis z ulicy Brokowskiej wrócił do lasu! Pomogła straż miejska i fundacja
Lis z ulicy Brokowskiej wrócił do lasu! Pomogła straż miejska i fundacja
04.12.2025 · 1380 osób przeczytało ten artykuł
Wiadomości z miasta Pluszowe misie i moc uśmiechu. Wolontariusze przynieśli świąteczną radość do szpitala w O…
Pluszowe misie i moc uśmiechu. Wolontariusze przynieśli świąteczną radość do szpitala w O…
02.12.2025 · 1364 osób przeczytało ten artykuł
Wiadomości z miasta Młodzież z pytaniami do burmistrza. Spotkanie w Zespole Szkolno-Przedszkolnym (zdjęcia)
Młodzież z pytaniami do burmistrza. Spotkanie w Zespole Szkolno-Przedszkolnym (zdjęcia)
01.12.2025 · 1358 osób przeczytało ten artykuł
Wiadomości z miasta W Ostrowi Mazowieckiej rozmawiano o bohaterach!
W Ostrowi Mazowieckiej rozmawiano o bohaterach!
30.11.2025 · 1183 osób przeczytało ten artykuł
Wiadomości z miasta Choinka 2025 już świeci, a Mikołaj odwiedził najmłodszych mieszkańców!
Choinka 2025 już świeci, a Mikołaj odwiedził najmłodszych mieszkańców!
11.12.2025 · 1149 osób przeczytało ten artykuł
Wiadomości z miasta Dodaj ogłoszenie na OstrowMaz24.pl! Pokaż, co oferujesz w kategorii "Firmy i usługi"
Dodaj ogłoszenie na OstrowMaz24.pl! Pokaż, co oferujesz w kategorii "Firmy i usługi"
07.12.2025 · 1082 osób przeczytało ten artykuł
Wiadomości z miasta Świąteczna gorączka zakupów. Trzy najbliższe niedziele będą handlowe
Świąteczna gorączka zakupów. Trzy najbliższe niedziele będą handlowe
04.12.2025 · 1008 osób przeczytało ten artykuł
Wiadomości z powiatu W pożarze pod Ostrowią Mazowiecką zginęła znana na Podlasiu bizneswoman i jej wnuk
W pożarze pod Ostrowią Mazowiecką zginęła znana na Podlasiu bizneswoman i jej wnuk
25.11.2025 · 17046 osób przeczytało ten artykuł
Wiadomości z powiatu Joanna Jabłczyńska w szpitalu. Mieszkanka podostrowskiej wsi dziękuje lekarzom i apeluje:…
Joanna Jabłczyńska w szpitalu. Mieszkanka podostrowskiej wsi dziękuje lekarzom i apeluje:…
30.11.2025 · 13641 osób przeczytało ten artykuł
Wiadomości z powiatu Starosta z podwyżką do maksimum
Starosta z podwyżką do maksimum
20.11.2025 · 9388 osób przeczytało ten artykuł
Pozostałe wiadomości Na S8 pojawi się odcinkowy pomiar prędkości. Kamery już są, kierowcy czekają na uruchomie…
Na S8 pojawi się odcinkowy pomiar prędkości. Kamery już są, kierowcy czekają na uruchomie…
04.12.2025 · 8649 osób przeczytało ten artykuł
Wiadomości z powiatu Radna Zawłocka nie odpuszcza w sprawie aptek! Starosta Bauer: "Dlaczego apteki nie są czy…
Radna Zawłocka nie odpuszcza w sprawie aptek! Starosta Bauer: "Dlaczego apteki nie są czy…
01.12.2025 · 7939 osób przeczytało ten artykuł
Policja Brutalny atak na Hiszpanów na trasie S8! Zamaskowani napastnicy zablokowali drogę i wtarg…
Brutalny atak na Hiszpanów na trasie S8! Zamaskowani napastnicy zablokowali drogę i wtarg…
11.12.2025 · 7792 osób przeczytało ten artykuł
Policja Wypadek na DK60 w pobliżu Sielca - zderzenie osobówki z ciężarówką
Wypadek na DK60 w pobliżu Sielca - zderzenie osobówki z ciężarówką
18.11.2025 · 7185 osób przeczytało ten artykuł
Policja Pijany 27-latek wjechał czołowo w auto w okolicach Rogóźni! Dwie osoby trafiły do szpitala
Pijany 27-latek wjechał czołowo w auto w okolicach Rogóźni! Dwie osoby trafiły do szpitala
27.11.2025 · 7026 osób przeczytało ten artykuł
Wiadomości z powiatu "Czy pan ma przyzwoitość samorządowca? Stawia się dyżury aptek, a obok podwyżkę dla staro…
"Czy pan ma przyzwoitość samorządowca? Stawia się dyżury aptek, a obok podwyżkę dla staro…
04.12.2025 · 6801 osób przeczytało ten artykuł

Bądź pierwszy! Dodaj komentarz

Twoja opinia pomaga być na bieżąco

Brak komentarzy

Rozpocznij dyskusję – napisz pierwszy komentarz poniżej.

0 / 1200 Wskazówka: zaznacz fragment artykułu i kliknij „Zacytuj”

Publikowane komentarze są prywatnymi opiniami Użytkowników serwisu ostrowmaz24.pl.

Reklama



Komentarze 0
Opcje

Dostosuj preferencje treści (zapis lokalny w przeglądarce):

Dołącz